|
|||||||||
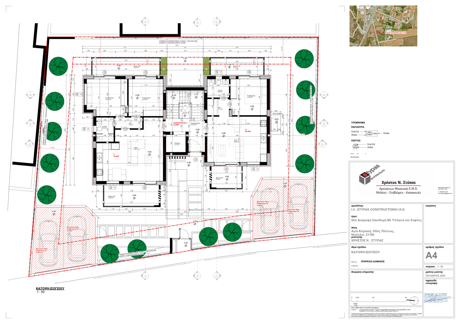
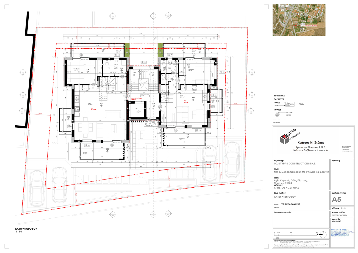
| Π7 Project (Κατασκευή - Πώληση) Μελέτη και κατασκευή διώροφης πολυκατοικίας με σοφίτες πολυτελών διαμερισμάτων με σύγχρονη αρχιτεκτονική γραμμή στο Ναύπλιο. Υπάρχουν διαθέσιμα 4 διαμερίσματα προς πώληση ή και η δυνατότητα να πωληθεί όλο το ακίνητο. |
| Για περαιτέρω πληροφορίες αγοράς ΕΠΙΚΟΙΝΩΝΗΣΤΕ ΜΑΖΙ ΜΑΣ μέσω μηνύματος στα i.stypas@icsconstructions.com & c.stypas@icsconstructions.com ή καλέστε στα 6944142326 & 6959994483 |
|
|














